Diện tích sàn là gì? Từ thông tin diện tích sàn sẽ giúp bạn tính vật tư sàn gỗ ra sao? Mời bạn cùng đọc bài viết này để biết thêm nhé!

Diện tích sàn là gì?
Diện tích sàn hay còn được gọi là diện tích mặt sàn, là tổng diện tích sàn chúng ta có thể sử dụng trong công trình xây dựng gồm tổng diện tích của các không gian từ các phòng cho tới các không gian như lô gia, tầng hầm, tầng tum, cầu thang, tầng mái…

Và trong bài viết này, diện tích sàn mà Gu Nhà Đẹp nói tới chính là diện tích mặt sàn mà chúng ta dùng để lót sàn gỗ
Cách tính diện tích sàn
Để tính được diện tích sàn nơi bạn cần lót sàn gỗ, bạn phải có được số đo chiều rộng và chiều dài cũng như hệ thống bố trí không gian trong phòng nơi bạn cần lót sàn gỗ.

Để có được số đo này, chúng ta có thể dùng thước đo đạc rồi vẽ lại hoặc đơn giản hơn là bạn có thể hỏi bản vẽ thiết kế của ngôi nhà từ đội ngũ thiết kế thi công căn nhà hoặc chủ đầu tư/ ban quản lý căn hộ của bạn
Sau khi đã có bản vẽ xây dựng hoặc kích thước chiều rộng, chiều dài của mặt sàn, bạn có thể tính diện tích sàn theo cách sau
– Cách tính diện tích sàn
Diện Tích Sàn = Chiều Dài x Chiều Rộng
Ở đây, chúng ta sẽ gặp một số trường hợp khiến bạn hơi khó khăn trong việc tính toán, đặc biệt là chị em phụ nữ, Gu Nhà Đẹp xin được nêu ra một số điểm khúc mắc thường gặp để bạn nắm được nhé!
– Cách tính diện tích sàn khi đã có bản vẽ xây dựng hoặc bản vẽ căn hộ
Thông thường, ở trên các bản vẽ căn hộ hoặc bản vẽ xây dựng, số đo chiều rộng và chiều dài căn phòng thường là số đo phủ bì (nghĩa là số đo bao gồm tường bao và cả các trụ cột, bạn có thể hiểu đơn giản là số đo tính từ phần mép tường xung quanh căn nhà)
- Chính vì vậy, để tính được diện tích sàn sử dụng cho việc lót sàn, bạn có thể trừ số đo phủ bì này ra.
Số đo này được gọi là lọt lòng, bạn có thể hiểu đơn giản nghĩa là số đo tính từ các mép tường bên trong căn nhà.
Vì vậy, khi có bản vẽ trong tay, bạn có thể tự tính chính xác diện tích sàn cần lát sàn gỗ bằng cách nhân số đo lọt lòng của chiều rộng và chiều dài căn phòng với nhau
– Trường hợp căn phòng của bạn không được vuông thì cách tính diện tích sàn là gì?
Đây là điều rất bình thường, một căn nhà sẽ gồm nhiều căn phòng, và đương nhiên mỗi căn phòng có sự bố trí sắp xếp không gian khác nhau, nên cũng sẽ hiếm khi nào mà vuông được

Khi gặp trường hợp này, bạn có thể đo và tính diện tích các phần sau đó cộng chúng lại với nhau để có tổng diện tích sàn
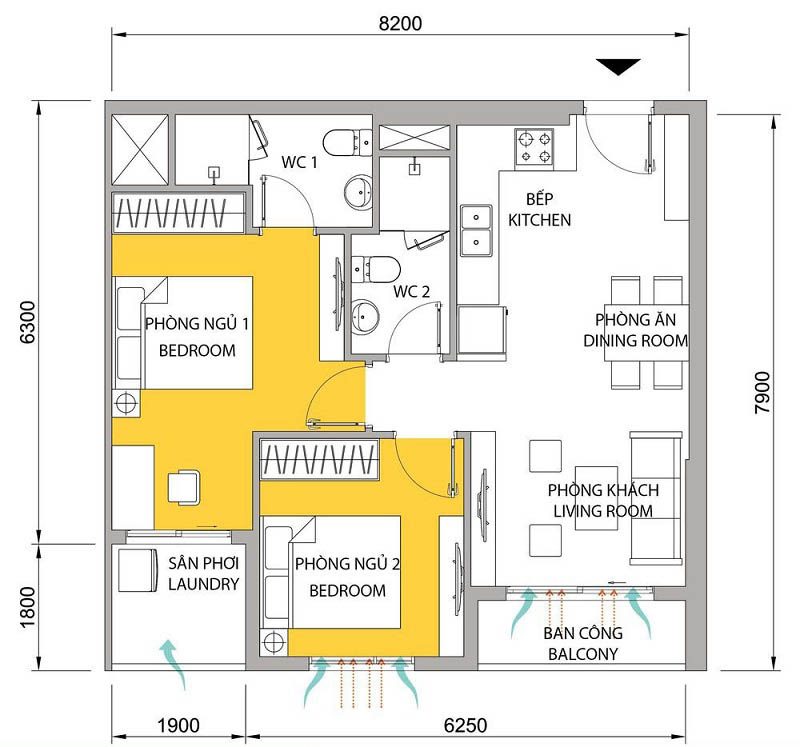
Ví Dụ:

Như bản vẽ mẫu ở trên, làm sao bạn có thể tính được diện tích sàn 2 phòng ngủ?
+ Như bản vẽ mặt bằng bố trí ở trên, số đo đã là số đo lọt lòng, chúng ta chỉ cần lấy chiều rộng căn phòng x chiều dài căn phòng là được
- Tính diện tích phòng ngủ 1
Chiều rộng: 2.835m, Chiều Dài: 3.1m
Diện tích PN1 = 2.835 x 3.1 = 8.79 m2
- Tính diện tích phòng ngủ 2
Chiều rộng: 2.885m, Chiều dài: 3.250m
Diện tích PN2 = 2.885m x 3.25m = 9.38 m2
- Vậy tổng diện tích 2 phòng ngủ
=Diện tích PN1 8.79 + Diện tích PN2 9.38 = 18.17m2
Ngoài ra trong phòng có thiết kế 2 chiếc tủ, ở trường hợp này, nếu như tủ có sẵn, bạn có thể trừ diện tích 2 chiếc tủ ra để lót sàn phủ chân tủ, cách làm này sẽ thuận tiện hơn cho việc sửa chữa hoặc thay thế sàn sau này
Trường hợp nhà trống, tủ chưa lắp, thường sàn sẽ lót hết căn phòng, cách làm này có ưu điểm về thẩm mỹ, các đồ nội thất đều ở trên mặt sàn. Tất nhiên nhược điểm chính của cách này là sẽ rất khó khăn khi xảy ra sự cố ngập nước hoặc bạn muốn thay thế, sửa chữa sàn gỗ sau này. Vì đa phần hệ tủ – kệ ở các căn hộ sau khi lắp xong sẽ cố định vị trí.
Gu Nhà Đẹp gặp khá nhiều trường hợp như vậy, cách làm thường gặp là cắt xẻ sàn xung quanh chân tủ – kệ để thay thế
– Trường hợp bản vẽ của bạn quá khó để tự tính diện tích sàn thì phải làm gì?

Với bản vẽ có số đo khá chung chung như thế này, bạn có 2 cách để tính được diện tích sàn
– Cách 1: Dùng thước để đo chiều rộng và chiều dài phòng mình cần lót sàn cho chính xác
Cách này có thể đơn giản với nhiều người, tuy có hơi chút phiền phức, nhưng với một số khách hàng thì có vẻ hơi rắc rối
Chúng ta qua cách 2 nhé!
– Cách 2: Liên hệ với Gu Nhà Đẹp để được hỗ trợ!
Tất nhiên, Gu Nhà Đẹp luôn sẵn sàng hỗ trợ bạn nhanh gọn, nhiệt tình nhất, và luôn miễn phí tư vấn.
Hãy cho chúng tôi cơ hội được giúp bạn!
Cách tính m2 sàn gỗ từ diện tích sàn
Khi bạn đã có diện tích sàn cần lót, thì cách tính m2 sàn gỗ từ diện tích sàn sẽ như thế nào?
Công thức tính m2 sàn gỗ từ diện tích sàn
Diện tích sàn gỗ cần mua = Diện tích sàn bạn đã tính được + 3% đến 10% hao hụt dự phòng

+ Hao hụt là gì?
Hao hụt như cũng giống như tên gọi của nó, là phần bị thiếu hụt hoặc hao không thể tái sử dụng lại được. Chính vì cấu tạo sàn gỗ có hèm khóa, giúp liên kết các tấm sàn với nhau thành một mảng. Khi thi công, bắt buộc người thợ phải cắt hoặc xẻ các tấm ván để ghép khít với mặt bằng lót sàn
Chính vì vậy, sẽ có một lượng sàn bị cắt đi do khác kích thước hoặc không khít đầu hèm với các tấm ván lót sàn khác nên không thể dùng được nữa. Tất nhiên số sàn này sẽ không dùng được, và nó được gọi là hao hụt sàn
- Lượng hao hụt này thay đổi từ 3% đến 10% tùy vào sắp xếp, bố trí hay độ vuông các góc và tổng diện tích của căn phòng, tất nhiên người thợ thi công sàn sẽ có kinh nghiệm trong việc sắp xếp bố trí cách lót để hạn chế hao hụt vật tư sàn cho bạn nhất có thể
– Xem ngay bài viết về hèm khóa sàn gỗ để biết chi tiết hơn tại đây bạn nhé!
Như ví dụ ở phía trên, tổng diện tích 2 phòng ngủ của căn hộ chúng ta đã tính được là 18.17m2

Hai căn phòng vuông vức nhưng diện tích các phòng khá nhỏ, lúc này hao hụt dự kiến ở mức 5 – 10%, bạn có thể lấy thêm từ 1 -2m2, tốt nhất là 2m2 sàn để dự phòng trường hợp thiếu sàn.
Như vậy bạn cần mua khoảng trên dưới 20m2 là đủ để lót cho 2 căn phòng ngủ như ví dụ Gu Nhà Đẹp đưa ra, chắc hẳn bạn đã biết cách tự tính vật tư sàn rồi đúng không nào?
- Và nếu như bạn cảm thấy khó quá, vậy hãy Click tại đây để nhận hỗ trợ tư vấn từ đội ngũ của chúng tôi nhé!
– Khi lót sàn xong, phần sàn gỗ bị dư không dùng tới tôi nên làm gì?
Chắc hẳn bạn đang thắc mắc điều này đúng không? Nếu như lấy dư ra như vậy, lúc lát sàn xong có thể sẽ dư vật tư, vậy phần vật tư này bạn có thể chọn 1 trong 2 cách sau để xử lý
+ Cách 1
Trong trường hợp số sàn còn dư ra khá ít, chỉ một vài tấm. Gu Nhà Đẹp khuyến nghị bạn nên giữ lại và lưu kho để dự phòng trường hợp sau này có cần phải sửa chữa hoặc thay thế chúng ta có vật tư sẵn, không cần phải tìm mua

- Gu Nhà Đẹp đã gặp nhiều trường hợp khách hàng dùng sàn một thời gian thì gặp rủi ro hỏng hóc hoặc trầy xước cần thay thế, lúc này phải tìm một vài tấm ván sàn gỗ khác cùng mã để thay thế và gặp trường hợp mẫu sàn gỗ bị bỏ mẫu, dẫn đến không có vật tư để thay thế
Vì mỗi dòng sàn có một kích thước và hệ thống hèm khóa riêng, nên phải đúng mã bạn mới có thể ghép khít các tấm ván vào với nhau. Đặc biệt là những dòng hàng có thương hiệu lạ hoặc hàng nhập khẩu Trung Quốc thường bị vấn đề này nhất
+ Cách 2
Tường hợp số sàn còn dư nhiều và bạn cũng không muốn giữ lại làm gì thì bạn có thể gửi trả lại cho người bán hàng
Mỗi đơn vị cung cấp vật tư và dịch vụ lót sàn đều có chính sách nhận hàng thi công còn dư riêng. Thường trong khoảng thời gian từ 7 – 14 ngày tính từ ngày nhận hàng, bạn có thể gửi trả lại phần hàng mà mình thi công còn dư. Tuy nhiên chi phí vận chuyển trả về thông thường người mua sẽ phải trả
- Gu Nhà Đẹp là đơn vị duy nhất tại TP HCM hỗ trợ miễn phí chi phí gửi trả hàng dư sau thi công này cho bạn để làm tròn dịch vụ tận tình của mình. Và cũng như một lời cảm ơn khách hàng đã tin tưởng ủng hộ Gu Nhà Đẹp
Cách tính số hộp sàn gỗ cần mua từ diện tích sàn đã tính được

Mỗi dòng sàn gỗ đều có một kiểu kích thước ván lót sàn và cách đóng gói khác nhau. Chính vì vậy diện tích sàn trên mỗi hộp của từng thương hiệu cũng khác nhau
Diện tích từng hộp sàn gỗ của mỗi nhãn hàng sẽ dao động khác nhau từ 1m2 đến 2m2 hoặc hơn với đóng gói số tấm trên hộp cũng khác nhau từ 4 -12 tấm hoặc có thể lên đến trên dưới 30 tấm
Như vậy, làm sao bạn có thể tính chính xác số hộp sàn gỗ cần mua khi đã có được diện tích sàn?
– Mỗi sản phẩm sàn gỗ đều được Gu Nhà Đẹp ghi chú rất kỹ số m2 và số tấm mỗi hộp nên bạn chỉ cần dùng công thức như sau để tính là được
Cách tính số hộp sàn gỗ cần dùng
Số hộp sàn gỗ cần dùng = Tổng diện tích sàn cần lót (đã cộng hao hụt) / diện tích mỗi hộp
Ví dụ
Như ví dụ ở phần trước, diện tích sàn đã gồm hao hụt chúng ta tạm tính là 20m2, bạn muốn dùng sàn gỗ Janmi có diện tích sàn mỗi hộp là 1.98m2

Áp vào công thức ta có:
Số hộp sàn gỗ cần mua = 20m2 / 1.98m2/ hộp = 10.1 Hộp
- Vậy bạn chỉ cần mua 10 hộp và có thể lấy thêm 1 hoặc 2 tấm ván lẻ nữa là được
Rất đơn giản đúng không nào?
Vậy còn phụ kiện thì sao? Cách tính phụ kiện cần mua như thế nào?
Để tính được phụ kiện cần mua, chúng ta cũng sẽ dùng những số đo chiều ngang và chiều dài bạn nhé
Cách làm hơi khác một chút, vì phụ kiện như thanh len sẽ bao quanh sàn gỗ, hoặc các loại nẹp sẽ ốp trên mặt sàn nên chúng ta sẽ dùng công thức tính chu vi
Bạn đọc bài viết này để biết cách tính phụ kiện sàn gỗ cần mua nhé!
Câu hỏi thường gặp

Gu Nhà Đẹp nhận được rất nhiều câu hỏi của khách hàng khi muốn lót sàn gỗ, bạn có thể đọc thêm bên dưới nhé!
Nên lát sàn gỗ bản to hay nhỏ?
Không có lời khuyên cụ thể hay chính xác nhất nào cho câu hỏi này, thực sự mỗi loại kích thước sàn gỗ bản to hoặc bản nhỏ đều có ưu và nhược điểm riêng. Chính vì vậy chúng ta có thể lựa chọn mẫu kích thước sao cho phù hợp nhất với mặt bằng của mình
+ Nếu như bạn muốn lót cho không gian nhỏ? Vậy hãy dùng sàn gỗ bản nhỏ, nó có thể làm không gian căn phòng của bạn trông rộng rãi hơn
+ Nếu như bạn muốn lót cho không gian lớn? Vậy hãy dùng sàn gỗ bản lớn, vừa dễ vệ sinh lau chùi, lại hạn chế được sự dãn nở của sàn và làm không gian hài hòa hơn
Kích thước sàn gỗ xương cá
Sàn gỗ xương cá thường là những mẫu có kích thước nhỏ với chiều rộng khoảng 90mm – 100mm, chiều dài từ 450mm đến trên dưới 600mm
Kích thước ván gỗ tự nhiên
Sàn gỗ tự nhiên cũng có kích thước qui chuẩn khá đa dạng, bề ngang tấm ván khoảng 90mm, chiều dài thông thường dao động từ 450mm đến 900mm
Kích thước sàn gỗ công nghiệp
Sàn gỗ công nghiệp là dòng hàng đa dạng và có thị phần lớn nhất trên thị trường hiện nay. Kích thước các mẫu sàn gỗ công nghiệp cũng vô cùng đa dạng và phong phú
Bạn xem bài viết này để đọc tất tần tật thông tin về kích thước các loại sàn gỗ tại đây nhé!
Ghé thăm Facebook Gu Nhà Đẹp bạn nhé!

